― STIČNA HIŠA

Hiša tip B

Razporeditev

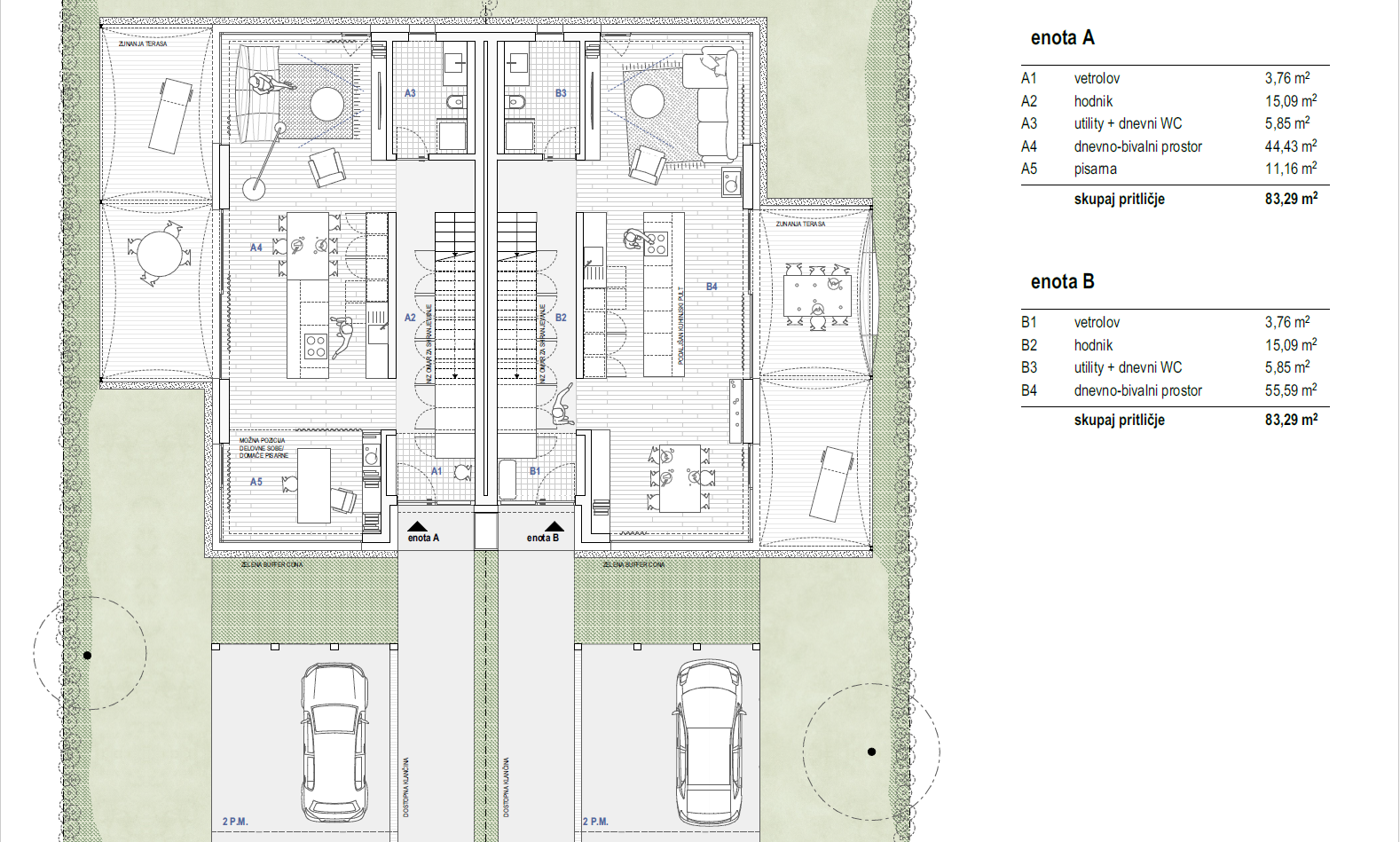
Enota A

Pritličje
1
2
3
4
5
Vetrolov
Hodnik
Utility + dnevni WC
Dnevno-bivalni prostor
Pisarna
3,76 m2
15,09 m2
5,85 m2
44,43 m2
11,16 m2
1. Nadstropje
6
7
8
9
10
11
12
13
Hodnik + stopnišče
Kopalnica 1
Otroška soba 1
Otroška soba 2
Garderobna soba
Spalnica
Kopalnica 2
Pralnica
13,44 m2
5,37 m2
17,22 m2
15,03 m2
9,82 m2
12,07 m2
5,60 m2
1,38 m2

Skupaj neto površina
Nadstrešnica za avtomobile
Enostavni objekt terasa

166,58 m2
25,00 m2
14,00 m2

Skupaj

205,58 m2

Enota B

Pritličje
1
2
3
4
Vetrolov
Hodnik
Utility + dnevni WC
Dnevno-bivalni prostor

3,76 m2
15,09 m2
5,85 m2
55,89 m2

1. Nadstropje
5
6
7
8
9
10
11
12

Hodnik + stopnišče
Spalnica
Garderoba
Terasa
Kopalnica
Soba 1
Soba 2
Pralnica

13,44 m2
5,37 m2
17,22 m2
15,03 m2
9,82 m2
12,07 m2
5,60 m2
1,38 m2

Skupaj neto površina
Nadstrešnica za avtomobile
Enostavni objekt terasa

166,58 m2
25,00 m2
14,00 m2

Skupaj

205,58 m2

Prikazi fasad

― OTVORITVENI PAKET HIŠE TIP B

Premium nizkoenergijska hiša tipa B

cca. 165 m2 uporabne površine

(klasična AB gradnja z opeko) finalizirana »na ključ« s parcelo 

od 659.900,00 € z vključenim DDV

Ponudba ne vključuje:

  • Sanitarne opreme, svetil ter opreme za tehnično varovanje objekta.
  • Števcev in končnih priključnin dobaviteljem komunalne oskrbe (voda, elektrika, telekomunikacije). Doplačilo distributerjem – koncesionarjem, cca. 990 €.

― materiali

Dodatna specifikacija vgrajenih nadstandardnih materialov in opreme
  • Klasična AB gradnja z opeko in toplotno izolirana AB temeljna plošča.
  • Kombinacija kontaktne in montažne toplotno izolacijske fasade (v skladu z arhitekturo naselja) debeline 18 cm.
  • PREMIUM ALU Vhodna vrata  – termoizolacijska in varnostna.
  • Vrhunska LES-LES nizkoenergijska okna in vrata, protivlomno okovje, s troslojno zasteklitvijo (standardna montaža).
  • Vgrajen sistem talnega ogrevanja in pasivnega hlajenja objekta s TČ Panasonic – Aquarea »All in one« – zrak voda (vključno z notranjo in zunanjo enoto) z Wi-Fi vmesnikom in oddaljenim upravljanjem preko »clouda«.
  • Dobava in vgradnja cevi talnega ogrevanja, razdelilcev (možnost ročne regulacije temperature po prostorih), dovoda do kurilnice (vse evropsko certificirani ponudnik z EU garancijo).
  • Predpriprava ožičenja pogonov ventilov v omaricah talnega gretja (pritličje in nadstropje). 
  • Centralno prezračevanje z regeneracijo odpadnega zraka (vrača toploto in vlago), model Komfovent Domekt R 300 V).
  • Izvedba hišnega vodovodnega sistema GEBERIT, povezava do vodovodnega jaška na parceli (vključena dobava in montaža jaška, brez vodomera in priključkov ter priključnine za MB vodovod).
  • Izvedba celotne notranje odtočne kanalizacije iz nizkošumnih PVC cevi ter tuš kanalet in tuš zastorov v skladu s tlorisi.
  • Dobava in montaža podometnih kotličkov GEBERIT z električno napeljavo (brez tipke) ter izpusti za nadometni sistem tuš armatur.
  • Predpriprava kompletne inštalacije z dozo (1N) za namestitev klimatske naprave (split enota). 
  • Izvedba vseh elektro inštalacij v skladu s projektom in tlorisi.
  • Predpriprava za fotovoltaiko (sončno elektrarno) na nadstrešku za avtomobile.
  • Priprava za hišno polnilno postajo za e-vozila.
  • Dobava in vgradnja vtičnic ter stikal – modul sistem, bela barva.
  • Vgrajene inštalacije (internetna telefonija, internet, TV in videonadzor).
  • Zunanje žaluzije na motorni pogon.
  • Terasa (P) objekta v izvedbi pohodnih plošč na buzonih.
  • Zemeljsko poravnana parcela brez trate.
  • 2x konstrukcija za nadkrito parkirno mesto pred objektom (opcijska možna vgradnja fotovoltaičnih panelov ali izvedba zelene strehe – doplačilo).
Rezervacije in velikosti parcel
Soseska Rožnodolski Gaj Maribor
Privacy Overview

This website uses cookies so that we can provide you with the best user experience possible. Cookie information is stored in your browser and performs functions such as recognising you when you return to our website and helping our team to understand which sections of the website you find most interesting and useful.